
Myynnissä
AS OY HYVINKÄÄN KALSIITTI
KOTI PUISTON REUNALTA
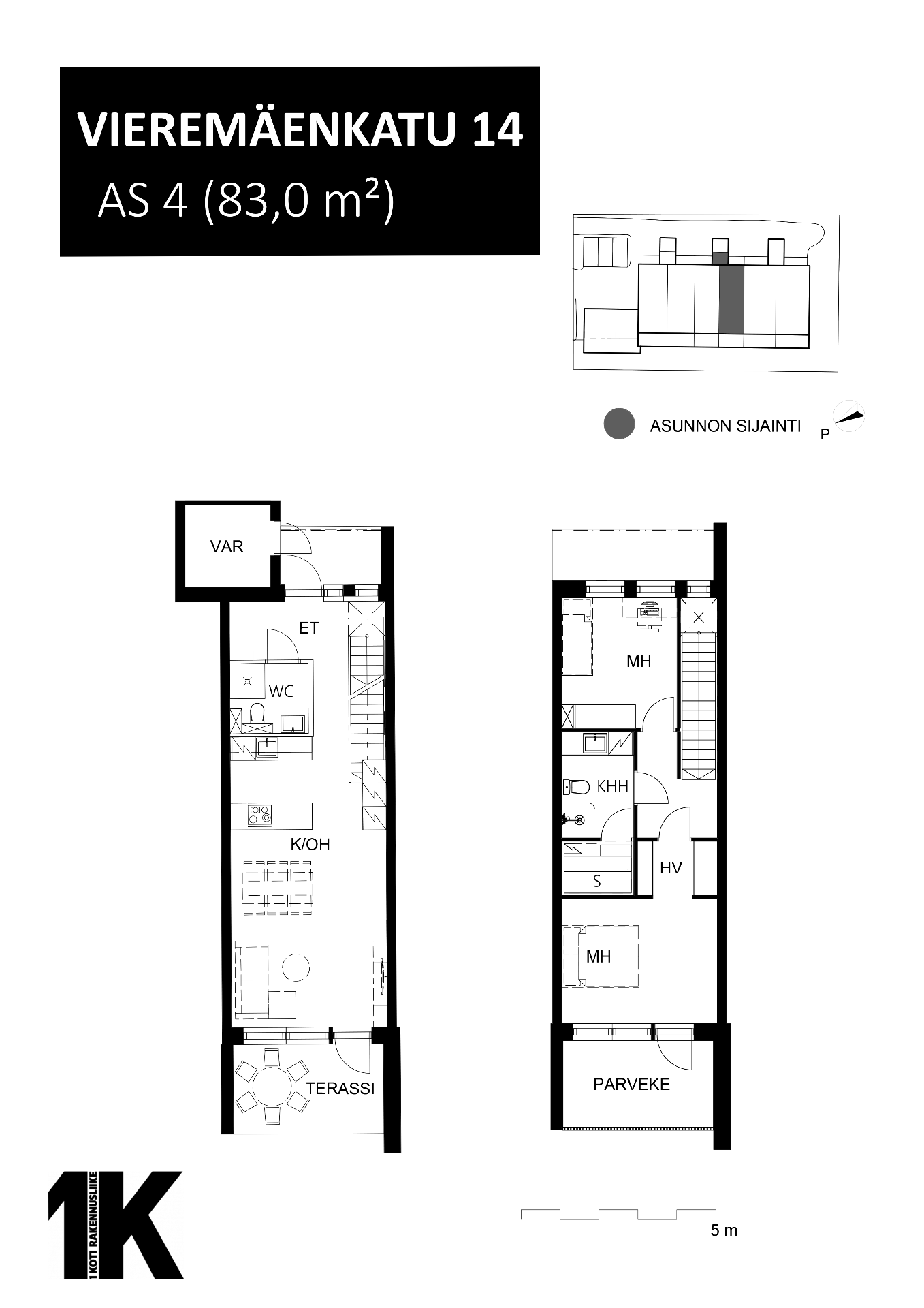
Vieremänkatu 14, 05900 Hyvinkää
Hyvinkään Vieremän puiston reunalle valmistuu kuuden asunnon kaksikerroksinen rivitalo. Tyylikkäät asunnot ovat suunniteltu arjessa toimiviksi ja valittavana on kahden tai kolmen makuuhuoneen asuntoja. Jokaisella asunnolla on oma tilava terassi/takapiha ja parveke, sauna sekä viilentävä ilmalämpöpumppu.

PERUSTIEDOT
- Nimi: Asunto Oy Hyvinkään Kalsiitti
- Osoite: Vieremänkatu 14, 05900 Hyvinkää
- Asuntojen määrä: 6kpl
- Asuntokoot: 83m2 - 92,5m2 - 108,5m2
- Autopaikkojen määrä: 6kpl
- Tontti: Oma
- Lämmitysmuoto: Lattialämmitys, kaukolämpö
- Aikataulu: Valmistuu kesällä 2026
- Pääsuunnittelija: Antti Ek
Myynti ja lisätiedot: Lotta Vanne
040 510 3200 myynti@muurausliike.fi

KOTI VIEREMÄN ALUEELTA
As Oy Hyvinkään Kalsiitti rakentuu vanhalle ja arvostetulle Vieremän alueelle. Vieremän alue on rauhallinen, mutta suosittu asuinalue aivan Hyvinkään keskustan välittömässä läheisyydessä. As Oy Hyvinkään Kalsiitti tarjoaa laadukkaita koteja perheiden muuttuviin tarpeisiin. Toteutamme vanhalle asuinalueelle täydennysrakentamisena, ajan henkeen sopivan tyylikkään kaksikerroksisen rivitalon.

TOIMIVIA TILARATKAISUJA
Kahden tai kolmen makuuhuoneen asuntojen suunnittelussa
arkkitehti on painottanut arjessa toimivia tilaratkaisuja, asukkaan
näkökulmasta, eri elämänvaiheita varten.
Suuret ikkunat ja vaaleat pinnat luovat tilan tuntua asumiseen. Materiaalit ovat tarkasti valittuja laatu ja tyylikkyys edellä. kestävät ja laadukkaat materiaalit ovat myös ekologinen valinta.

EKOLOGISUUS JA ENERGIATEHOKKUUS
Kestävä kehitys ja ympäristö ovat meille tärkeintä asioita, Kalsiitissa on huomioitu tulevaisuuden energiamuodot ja varustettu nykyajan ratkaisuilla. Rakentamisessa on pyritty mahdollisuuksien mukaan käyttämään kotimaisia tuotteita, rakennustarvikkeita sekä paikallisia asentajia.
Lämmitysmuotona Kalsiitissa on energiatehokas kaukolämpö,
vesikiertoisella lattialämmityksellä, mikä luo viihtyisyyttä asumiseen.
Jokaisessa asunnossa on myös viilentävä ilmalämpöpumppu, kesän
auringonpaiste ei haittaa asumista.
Kalsiitin autokatospaikat varustetaan sähköauton latausmahdollisuudella, asukkaalle jää vain laturin hankinta ja asennus. Taloyhtiön autopistokepaikoille rakennetaan valmiiksi varaukset sähköautojen latauspisteitä varten.
VISUALISOINTIKUVIA SISUSTUKSESTA
OTA YHTEYTTÄ
Ole hyvä ja jätä yhteystietosi niin otamme sinuun yhteyttä niin pian kuin voimme.

Lotta Vanne 040 510 3200 myynti@muurausliike.fi
Asuntojen pohjat






